В Туле прошла презентация нового проекта — жилого дома «О`Да». Событие собрало десятки специалистов по недвижимости, которые после выступления девелоперов завалили их вопросами о начале бронирования.

Чем же привлек внимание собравшихся жилой дом «О`Да»? Рассказываем!
Проект в Туле реализует компания «Еврострой», которая за 18 лет работы на рынке построила более 200 000 кв. метров жилья в Воронеже и Тамбове. Сейчас в работе еще 60 000 кв. м.

По словам руководства «Евростроя», проект призван не удивить, а показать качественный проект, который подойдет тем, кто ценит комфорт и надежность.

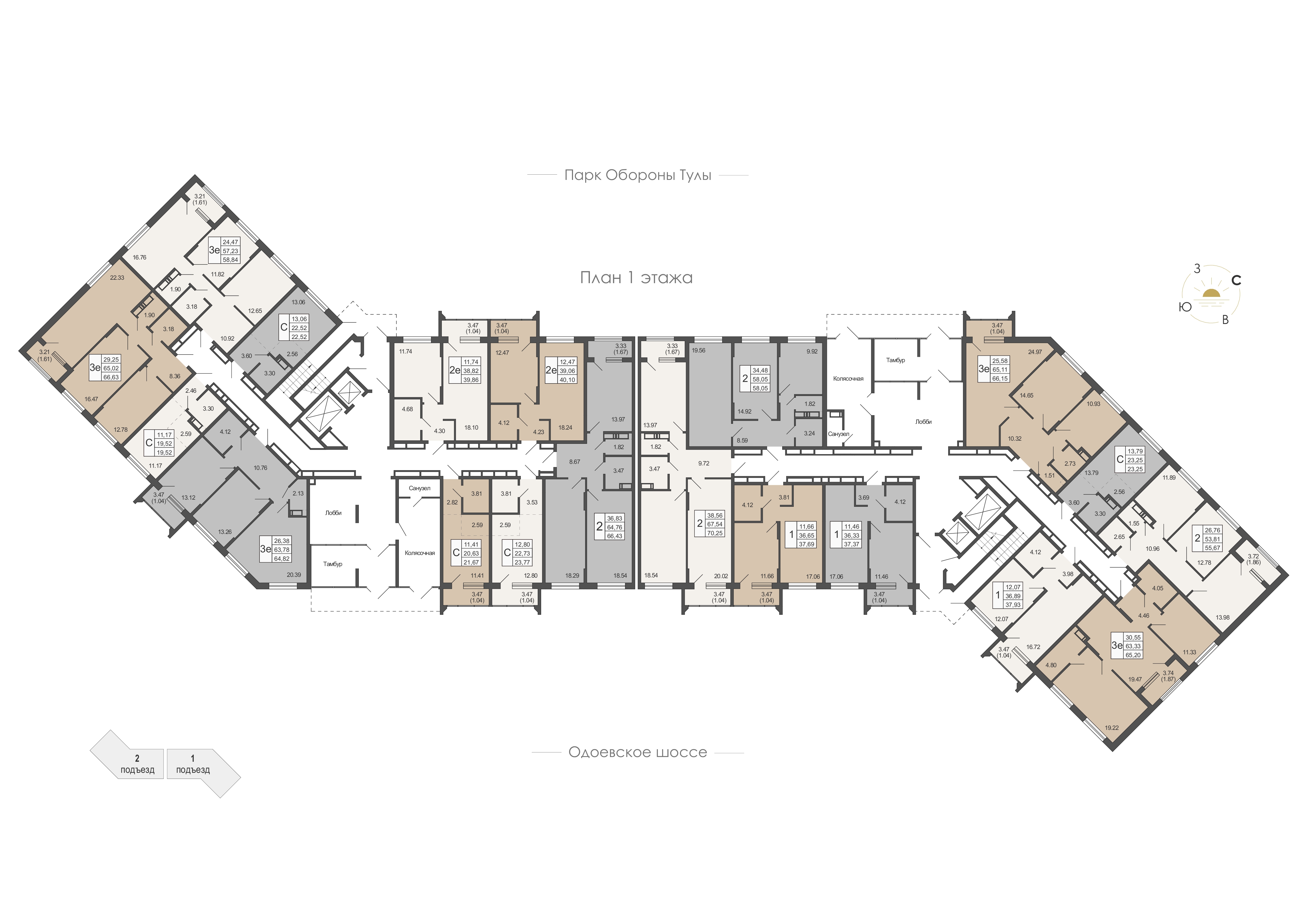
Жилой дом «О`Да» располагается на Одоевском шоссе рядом с парком Обороны Тулы, что сочетает в себе удобную транспортную развязку и живописное окружение. До парка — всего одна минута, до центра города — 20. Жить в таком месте будет удобно людям всех возрастов.
«О`Да» расположится в уже развитом микрорайоне, рядом — остановки общественного транспорта, магазины и ПВЗ, школы и детские сады.

Монолитный дом из качественных материалов будет удачно вписан в природный ландшафт, а закрытый двор и продуманное благоустройство подарят жителям ощущение уюта.

Большая парковка возле дома будет организована так, что автомобили не станут заезжать во внутреннюю часть двора. Это важно для безопасности юных жителей дома.

Дом соответствует всем стандартам современных новостроек. В каждом подъезде — стильные светлые лобби с зонами ожидания курьеров и гостей, пространства для хранения колясок и велосипедов и даже гостевой санузел.

В доме много самых разнообразных планировок: от компактной студии до просторных квартир для большой семьи.

Главная изюминка проекта: все квартиры будут сдаваться с чистовой отделкой.
Обои, ламинат, натяжной потолок, керамическая плитка в санузле, входная и межкомнатные двери уже будут в квартире. Интерьер выполнят в спокойных тонах, так что он подойдет большинству. Девелопер возьмет на себя все хлопоты, а владельцам квартир после получения ключей останется только расставить мебель и праздновать новоселье.
Еще один момент: цены на старте продаж очень приятные! Сдачу дома планируют уже в конце 2028 года, так что будущим жителям дома «О`Да» стоит поторопиться.

Продажи дома девелопер полностью передал в руки тульских агентов по недвижимости. Обращайтесь к ним и узнавайте все условия покупки!